Australia’s most famous building, the Sydney Opera House, is an icon and is known by nearly every Australian citizen. Designed by Pritzker Prize winning architect Jørn Utzon, it is an inspiration to many architects and designers. What maybe unknown to most people outside of the architectural world, is that Jørn Utzon was also an innovator in residential housing projects. Here are three housing projects that inspire us.
Utzon House
Location: Hellebæk, DenmarkBuilt: 1952

The first project we will look at is Utzon’s own house, which was inspired by Frank Lloyd Wright’s concern for nature and site, which helped Utzon realise that each project requires a bespoke approach. To facilitate a loan for the project, the maximum permissible building size was 130m2, small by today’s standards, but Utzon used these restrictions to introduce the idea of the open floor plan to his home country of Denmark. The interior was divided into study, dining, kitchen living, 2 bedrooms, bathroom, terrace and hallway spaces. Without any technical plans, Utzon, directed the construction and shaped the building on-site, paying close attention to the sun, wind and views. The house was built economically to a 1.2m x 1.2m module, which breaks down to a 120mm Danish brick length, which avoided the need to cut bricks. Trivially, once built, Utzon used his study as a design incubator, and in that space, he began the design for the Sydney Opera House

The second and third projects we will look at are the Kingo and Fredensborg Houses.
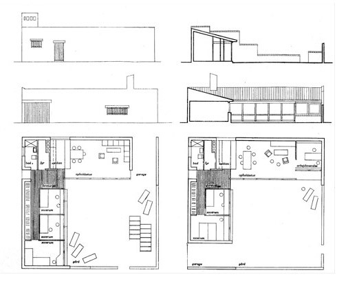
Kingo Houses
Location: Helsingør, Denmark
Built: 1958

Both of these projects by Utzon are similar in concept, with the Kingo Houses directly influencing the Fredensborg development. Built economically to an exacting amount of bricks, the L-Shape floor plans were inspired by traditional Danish farmhouses. In one length of the ‘L’, is living and study spaces, and in the other length, is the kitchen, bedroom and bathroom spaces. The ‘L’ is then orientated toward the sun to maximise interior solar access and natural light. The open sides are then bound by a brick wall fence to form a square, thus creating a courtyard. Giving a sense of openness, a connection to landscape/nature, visual protection, and a feeling of security & peacefulness, courtyards are an excellent design element to utilise.
Fredensborg Houses
Location: Fredensborg, DenmarkBuilt: 1963

Ideas: bespoke approach, open plan living, design for sun, wind & views, economic construction, courtyards
Ideas: bespoke approach, open plan living, design for sun, wind & views, economic construction, courtyards
References:
